HOSPITAL ZONA NORTE DE SAN SALVADOR

Dasein Koop

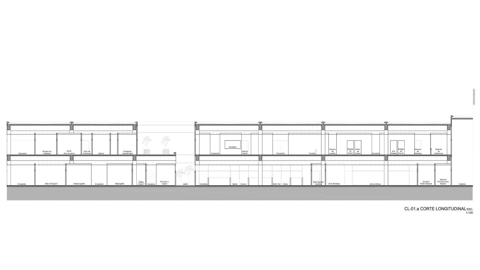
  • ProyectoHospital Zona Norte de San Salvador
  • PropietarioGobierno del Salvador / Ministerio de Salud
  • UbicaciónSan Salvador
  • DesarrolloAnteproyecto Hospital 100 camas
  • Año de proyecto2020
  • Superficie del proyecto16,000 m2
  • Colaboración conInterior 1
HOSPITAL ZONA NORTE DE SAN SALVADOR